雷鳴登集團伙安省基建局推進
城市廣場發展新計劃曝光 擬建12座高樓商住社區

[2025.09.30] 發表
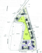
該樓盤最初的規劃只有一座高層酒店兼柏文的高層大廈,其餘的場地都用於興建3層的大面積商鋪區。(雷鳴登公司的早期規劃圖)
太古廣場目前的客流量無法令各家商舖滿意,希望鄰居的動工興建能帶旺人氣。(明報記者攝)
原先的城市廣場樓盤,如今荒草已有一人多高。(明報記者攝)
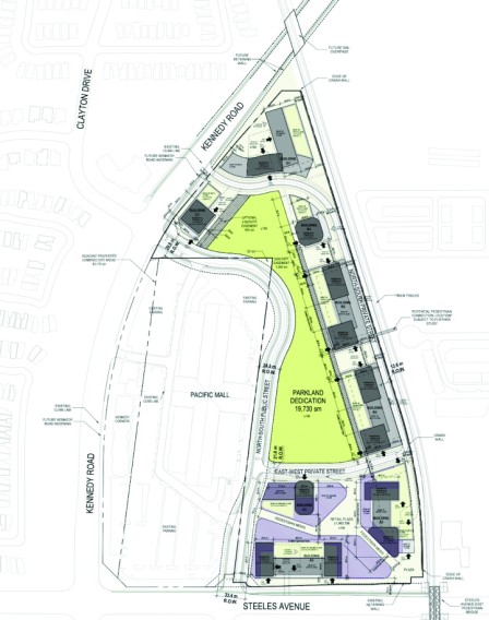
現在的規劃是8個樓組共12座高樓,住戶單位高達5500個。(呈交萬錦市府的最新規劃圖)

【明報專訊】荒置多年的萬錦市城市廣場(Market Village)項目,從2018年拆除舊建築至今仍是一片荒地。日前有權威渠道消息稱,該項目初步定為包括12座高層(最高50層)柏文大廈、中央公園以及商用裙樓在內的大型社區。

加國首屈一指的地產開發數據庫網站UrbanToronto本月24日報道稱,開發商「雷鳴登集團」(The Remington Group)找來安省基建局(Infrastructure Ontario)合作,讓這個規劃多次修改的項目又有了新的面貌。

這個在原「城市廣場」地塊上開發的項目,起初是要興建一個名為匯通廣場(Remington Centre)的百億元商住混合區,當時號稱要打造80萬平方呎的零售空間、一幢酒店加共管柏文的獨棟高樓,還設有溜冰場等公共設施。

但這個項目卻一拖再拖,至今都還沒有動工修建,雖然曾有小商舖的提前預售,但地盤一直被荒廢,如今荒草都已經有一人多高。

昨日安省基建局向本報證實,「省府正與建設合作方雷鳴登公司一同推進該項目。同時我們將啟動公眾諮詢會議,其中網上視像會議將於10月15日舉行,線下的諮詢會則定於10月23日。對此有興趣的公眾可在網站(https://millikentoc.ca/)上註冊參加,並獲取更多詳情。」

10月將舉行兩次公眾諮詢會

轉機出現在安省政府將城市廣場東側的Milliken GO火車站也納入項目計劃之際,發展方向也由單一的零售轉為高密度的綜合社區。9月8日,雷鳴登公司與安省基建局向萬錦市市府正式遞交了《分區附例修訂申請》(Zoning By-law Amendment)。

根據安省基建局的網站介紹,原先規劃的一幢高樓變成了8個樓組,其中的4個樓組每個有2座高,總計12座高樓,樓高15層至50層不等,圍繞1.97公頃的中央公園佈局。

樓高15層至50層 單位5500個

整體建築面積約為37萬8600平方米,其中住宅佔36萬8500平方米(396萬6500平方呎 )。住戶單位總計5500個,戶型以一睡房為主,共3850套;兩睡房1100套;3睡房550套。未規劃單身柏文。

泊車場主要位於地下,另設有單車存放設施及其他細節,將在後續審批階段確定。

對於該項目的最新進展,當地市議員李思韻表示,「省府方面確有向萬錦市市府通報該項目的進展情況,但具體的細節就需要向省府方面查詢,因為這是省府與開發商直接對接的項目。」

面對「老鄰居」城市廣場終於要大興土木,為客源嚴重不足而擔憂的太古廣場某珠寶行店主稱,「如果是5到7座樓的住戶量,可能會帶來更多的人氣,我們不勝歡迎。但如果是12座樓的住戶,會不會嚴重影響交通?令住戶的居住舒適程度大減,大家都沒心情出來逛街,那反而不美。」

更多要聞一
鄒至蕙放風物業稅至少增2% 聯邦倘不撥款庇護者恐要埽
【明報專訊】多倫多市長鄒至蕙(圖)昨天表示,如果聯邦政府不為尋求庇護者提供更多資金,她可能會將物業稅提高至少2%。 鄒至蕙警告,如果聯... 詳情
漠視能有效減少超速車輛研究
【明報專訊】安省省長福特正在考慮重新利用他計劃即將禁止的雷達攝錄機,改用於追蹤被盜車輛。 福特宣布,他的政府將於下個月提出立法,禁止全... 詳情
福特鄙視新成立保守派團體 指為「粗人」及激進右翼分子
【明報專訊】一個保守派活動人士的組織、新興智庫「安大略項目」(Project Ontario)將於本周二(30日)在多倫多的賈丁納博物館成立... 詳情
多倫多法院個案積壓超荷 大批危駕衝燈者逍遙法外
【明報專訊】由於法院的個案長期積壓,數以十萬計的《公路交通法》案件被迫撤銷,涉及危險駕駛、闖紅燈和分心駕駛等行為。受害者抱怨正義被剝奪,市府... 詳情
美官員疑向安省司機喊話 「別再來美國了」掀熱議
【明報專訊】美國海關及邊境保衛局(CBP)正調查一段在網上流傳視頻,視頻中一名看似邊境官員的人對茪@輛掛茼w省車牌的司機大喊:「別再來美國了... 詳情

明報網站 · 版權所有 · 不得轉載
Copyright © 2025 mingpaocanada.com All rights reserved.
Ming Pao Daily News A wholly owned subsidiary of Ming Pao Enterprise Corporation Ltd.
Toronto Chinese Newspaper

Chief Executive Officer: Ka Ming Lui | Executive Chief Editor: Richard Kwok Kai Ng
1355 Huntingwood Drive, Scarborough, Ontario, Canada M1S 3J1 | Tel.: (416) 321-0088 | Fax: (416) 321-5377 | Advertising Hotline Tel: (416) 673-8250